Oxted, Tandridge

Mobirise Website Builder

After

Before

Mobirise Website Builder
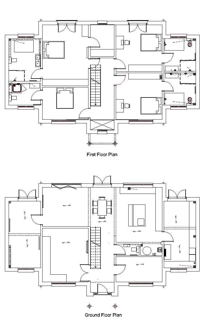
New Houses

Diverse, unique, well-sited, bespoke house designs to your order, that are actually achievable in the real world.

Like what you see?

Get in touch!

About

Since November 2010 Chrysalis Design has been offering a bespoke architectural service to private clients in the Guildford area, specialising in all aspects of residential architecture.

Get in touch
  • 07874 380721
  • Peter@chrysalis.pro
  • -
  • 66 Stoke Fields,
  • Guildford,
  • Surrey,
  • GU1 4LS

Made with Mobirise ‌

Free Web Page Creator